Korpitie 4 A, 33920 Pirkkala
Omakotitalo 5h, + k + 2 wc + khh + kph+ s + vaatehuone, tekninen tila + varasto +ak
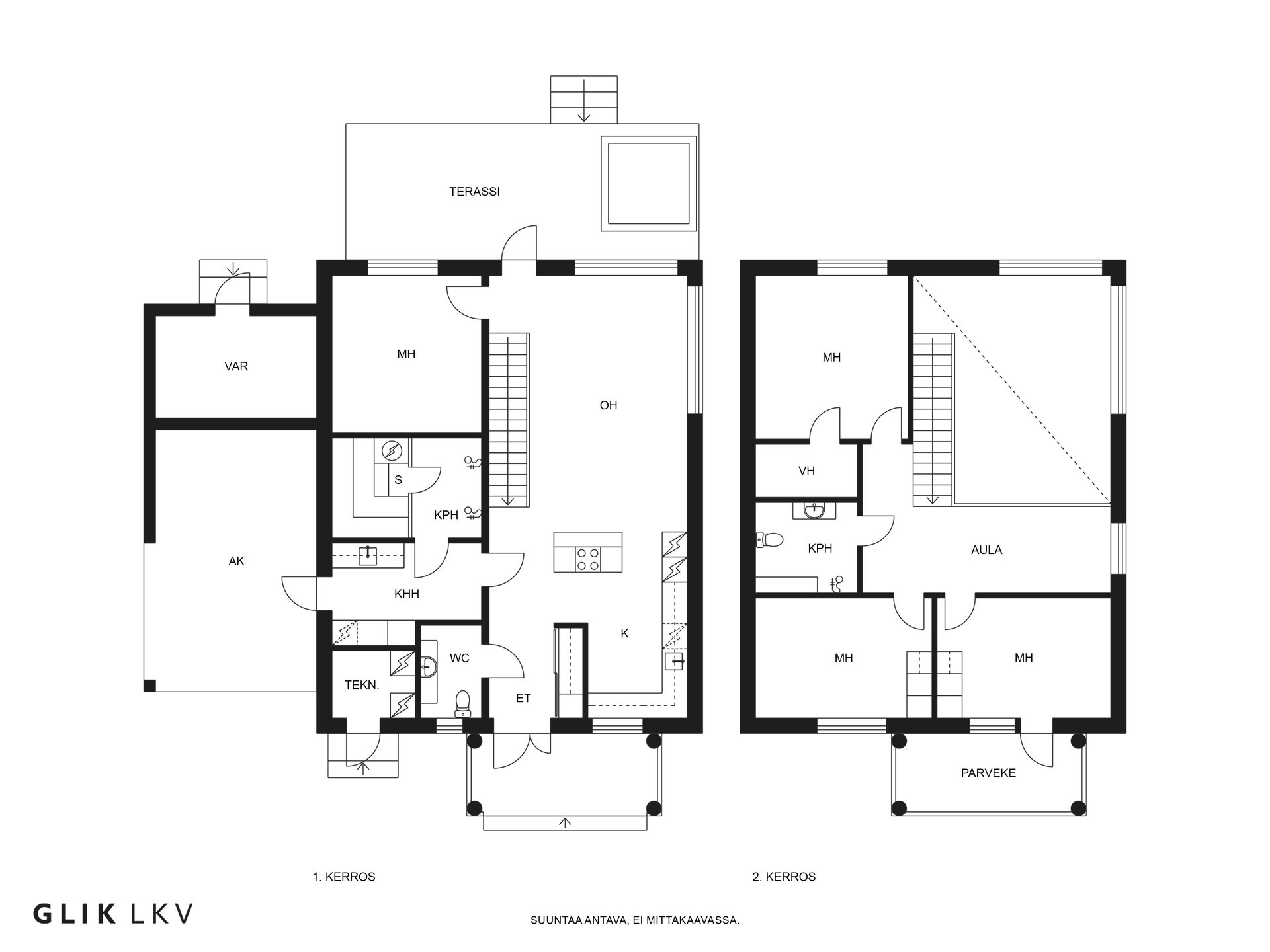
Omakotitalo Pirkkalan sydämessä! Tervetuloa tutustumaan upeaan kivitaloon Toivion rauhallisessa ympäristössä. Sijainti tarjoaa Pirkkalan parhaat puolet; luonto ja monipuoliset ulkoilureitit avautuvat kirjaimellisesti kotioveltasi, mutta silti Partolan kattavat palvelut löytyvät kätevästi kivenheiton päästä. Naapurusto on tunnettua lapsiystävällisyydestään, ja sekä koulut että päiväkodit sijaitsevat vain muutaman sadan metrin päässä. Pirkkala tarjoaa ihanteellisen yhdistelmän kaupungin palveluja ja lähiöelämän rauhaa. Täällä lapset voivat kasvaa turvallisessa ympäristössä, jossa on tilaa leikkiä ja liikkua, mutta kaikki tarvittavat palvelut ovat helposti saavutettavissa. Toivio on paikkana kuin oma pieni kylänsä, jossa perheet tuntevat toisensa. Tämä neljän makuuhuoneen koti on suunniteltu fiksusti. Pääsisäänkäynnistä aukeaa maisema läpi talon. Perheen arkieteinen saattaa kuitenkin löytyä kodinhoitohuoneesta, josta on käytännöllisesti ulko-ovi suoraan autokatokseen. Hulppea saunaosasto lasiseinineen on varustettu kahdella sadesuihkulla. Keittiö on tyylikäs ja ripauksen arjen luksusta ja helppoutta lisäävät aidot kivitasot. Yksi kodin makuuhuoneista on sijoitettu alakertaan, kolme makuuhuoneista löytyy yläkerrasta. Päämakuuhuoneen yhteydessä on parveke, sekä vaatehuone. Yläkerrasta löytyy myös mukavan kokoinen aulatila, johon voi sijoittaa näppärästi esimerkiksi työpisteen. Yläkerran wc-tilasta löytyy fiksusti myös oma suihkunsa. Suojaisalla takapihalla kelpaa nautiskella kesäpäivistä. Pihassa on nurmikko, ja talojen välissä pensasaita. Muuten sinulla on vielä mahdollisuus muokata tämä ympäristö perheellenne sopivaksi. Suunnittelun voin aloittaa vaikka istahtamalla terassiin upotettuun ulkoporealtaaseen ja katselemalla ympärilleen, uskoisin, että visiot alkavat kyllä nopeasti löytymään. Ota yhteyttä jo tänään ja varaa henkilökohtainen esittely - tule kokemaan itse, miksi tämä voisi olla juuri teidän perheen seuraava kotipesä!
Seinämateriaali: maalattu, osalaatoitus
Varusteet: kivi, jääkaappi, pakastin, induktioliesi, liesituuletin hormilla, mikroaaltouuni, astianpesukone
avokeittiö
Seinämateriaali: laatta
Varusteet: suihku
Tilavassa kylpyhuoneessa kaksi sadesuihkua.
Lattiamateriaali: laatta
Seinämateriaali: laatta
Yläkerran wc-tilassa myös suihku.
Lattiamateriaali: laatta
Seinämateriaali: paneeli
Varusteet: sähkökiuas
Lattiamateriaali: laatta
Seinämateriaali: laatta
Varusteet: pesukoneen liitäntä, pyykkikaapit, lattialämmitys, pöytätaso, uloskäynti
Seinämateriaali: Maalattu, Paneeli
Avara ja valoisa olohuone on kodin keskeisin paikka. Näyttävä laattalattia ja isot ikkunat tekevät tilasta kutsuvan. Olohuone yhdistyy ruokailutilan kautta keittiöön, muodostaen alakerrasta yhtenäisen oleskelutilan.
Lattiamateriaali: laminaatti
Seinämateriaali: maalattu
Suunnitteletko asuntosi myyntiä vai haluatko jättää sen omaksesi ja laittaa vuokralle?
Meillä on avuksesi tehokkaat ratkaisut molempiin tarpeisiin.
Asunnon maksuttoman hinta-arvioinnin avulla voit selvittää asuntosi oikean myyntihinnan nyt, tämän hetken markkinatilanteessa. Olemme onnistuneet 98 % tarkkuudella asuntojen hinta-arvioinneissa.
Jos mietit asunnon vuokrausta, tutustu vuokravälityspalveluumme ja vuokranantajan huolenpitosopimukseen, jossa hoidamme kaikki vuokra-asiat puolestasi. Kustannustehokkaan palvelun hinta on 33 €/kk/asunto (sis. alv.).
Kuvat kohteesta



























































